Skip to content
Ramírez Nogueira _ Arquitecto
Estudio de arquitectura, urbanismo y diseño
Menu
IEE
Coste de redacción de IEE en Granada
Obra
Arquitectura
Diseño
Conócenos
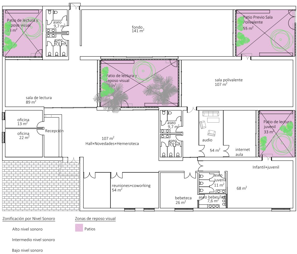
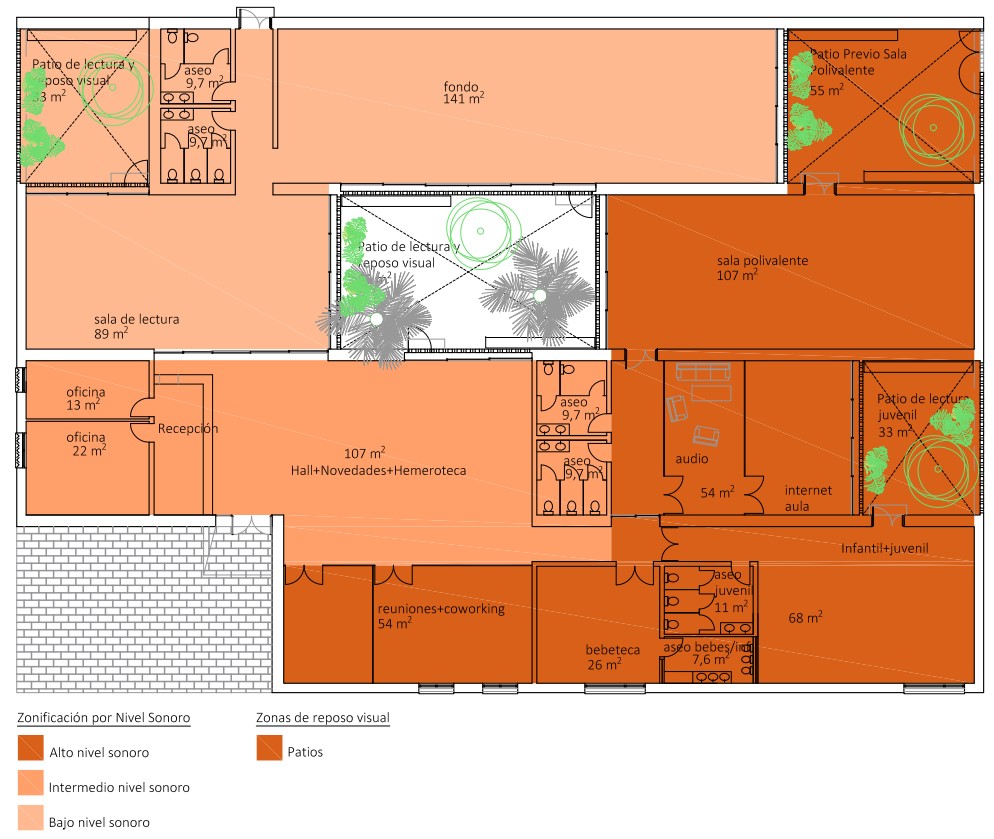
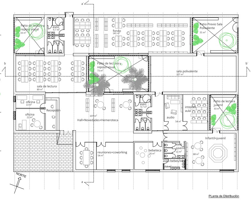
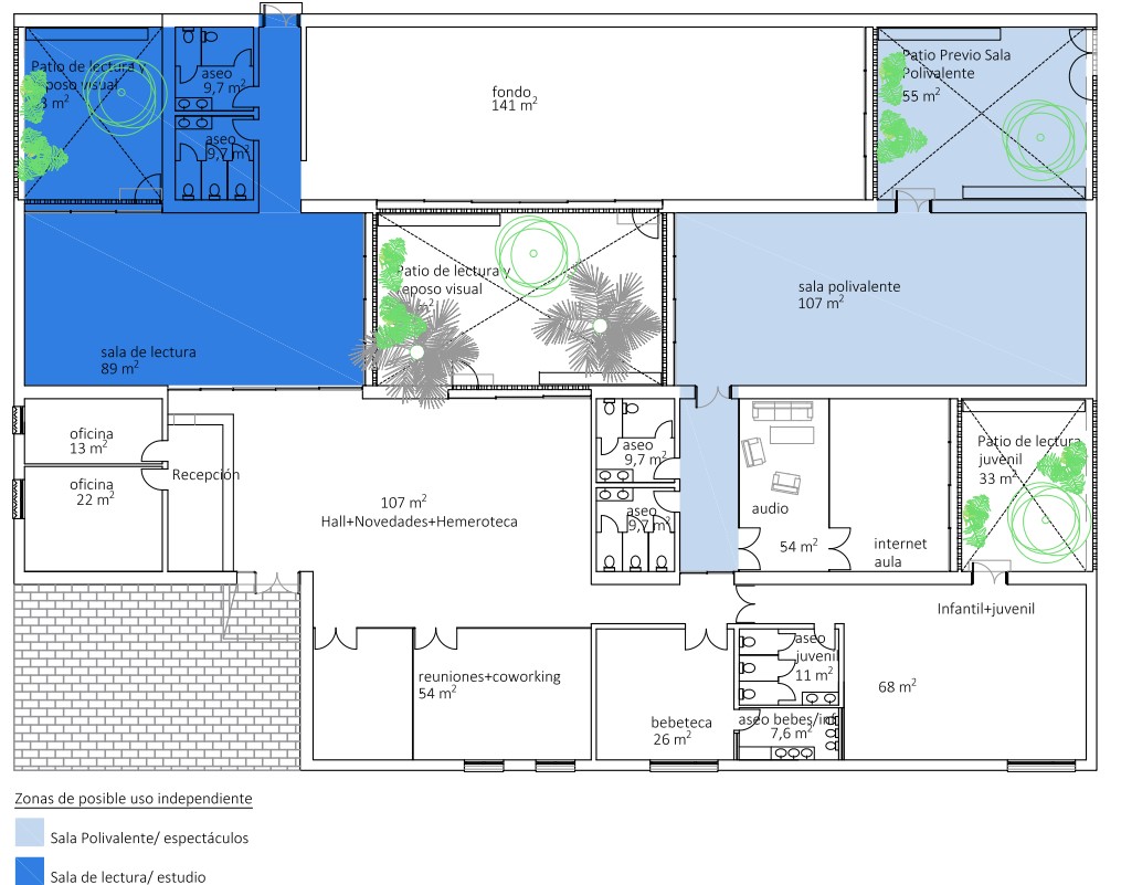
Biblioteca en Vera
Navegación de entradas
Bloque 15 viviendas en Ogíjares
Qué es el Informe de Evaluación del Edificio (IEE)